Thông tin cơ bản bồn tắm TOTO PAY1510HV#W/TVBF411
- PAY1510V#W: Bồn tắm
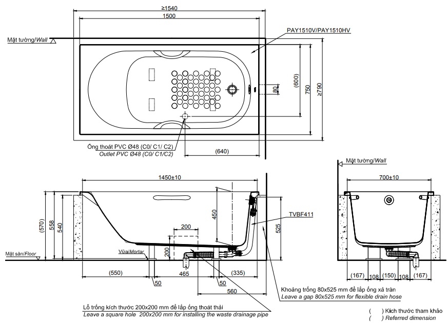
- TBVF411 : Bộ xả nhấn kèm ống thải bồn tắm
- Bồn tắm nhựa có tay vịn TOTO , không chân yếm
- Kích thước: 1500 x 750 x 558mm
- Dung tích: 176L
- Chất liệu: Nhựa
- Màu sắc: Màu trắng
- Xuất xứ: Việt Nam
Tính năng bồn tắm xây PAY1510HV#W/TVBF411 TOTO
- Thiết kế sang trọng với độ sâu phù hợp
- Bề mặt chống trơn trượt
- Tiện lợi với điểm tựa đầu thư giãn
- Có tay vịn
Bản vẽ kỹ thuật bồn tắm TOTO PAY1510HV#W-TVBF411


Chương trình khuyến mãi Thiết bị nhà bếp Malloca “Đại Tiệc Siêu To – Ưu Đãi Siêu Khủng”
Chương trình khuyến mãi INAX MÙA HÈ 2023 – SPA TẠI GIA KHÔNG ĐÂU BẰNG NHÀ
GIỚI THIỆU VỀ THƯƠNG HIỆU “THIẾT BỊ NHÀ BẾP MALLOCA VIỆT NAM”
Có nên lựa chọn dùng Bình nước nóng gián tiếp Atlantic, Máy nước nóng trực tiếp Centon?
Atlantic Centon là thương hiệu máy nước nóng của nước nào?
Bếp nấu
Máy hút mùi
giặt – rửa
Gia Dụng
Men Sứ
Sen Vòi
phụ kiện
men Sứ
Sen Vòi
phụ kiện
men Sứ
Sen Vòi
phụ kiện
men Sứ
Sen Vòi
phụ kiện
Bình nước nóng gián tiếp
Máy nước nóng trực tiếp
phòng tắm
nhà bếp
Tiện ích khác
Phòng tắm
nhà bếp
phụ kiện
men Sứ – Đá
Sen Vòi Đồng
phụ kiện
men Sứ
Sen Vòi
Nhà Bếp
phụ kiện
Máy NLMT Ariston
Máy NLMT Ferroli
Máy NLMT Đại Thành
Máy NLMT Sơn Hà
Máy NLMT Toàn Mỹ
Bồn Inox Đại Thành
Bồn nhựa Đại Thành
Chậu inox Đại Thành
Máy lọc nước Đại Thành



