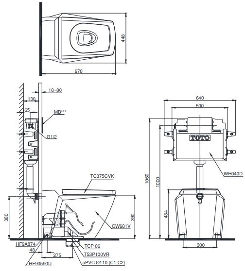
Thông số kỹ thuật bồn cầu TOTO CW681/TC375CVK:
- Mã sản phẩm: CW681
- Tên sản phẩm: Bàn cầu đặt sàn, nắp đóng êm TC375CVK
- Thiết kế: Thân dài
- Tâm xả: 275mm ( thoát sàn)
- Kích thước:670 x 448 x 434 mm
- Chế độ xả nước: 3L/6L
- Áp lực nước: 0.05Mpa~0.75Mpa
- Màu sắc: Màu trắng
Tính năng bồn cầu vệ sinh TOTO CW681 TC375CVK
- Thiết kế sang trọng, hiện đại phù hợp với bộ Jewelhex
- Nắp đóng êm
- Công nghệ CeFiONtect giúp lòng bàn cầu siêu nhẵn, hạn chế tối đa các vết bẩn, vi khuẩn
- Thiết kế thân kín giúp tiết kiệm thời gian, chi phí vệ sinh sản phẩm
- Bàn cầu kiểu dáng đặt sàn giúp dễ dàng vệ sinh
- Thiết kế két nước âm tường
Chi tiết phụ kiện bồn cầu treo tường gồm có:
- Thân cầu: CW681 – Xuất xứ: Việt Nam
- Nắp bồn cầu: TC375CVK – Xuất xứ: Trung Quốc
Bản vẽ kỹ thuật xí bệt CW681 két nước âm tường TC375CVK


Chương trình khuyến mãi Thiết bị nhà bếp Malloca “Đại Tiệc Siêu To – Ưu Đãi Siêu Khủng”
Chương trình khuyến mãi INAX MÙA HÈ 2023 – SPA TẠI GIA KHÔNG ĐÂU BẰNG NHÀ
GIỚI THIỆU VỀ THƯƠNG HIỆU “THIẾT BỊ NHÀ BẾP MALLOCA VIỆT NAM”
Có nên lựa chọn dùng Bình nước nóng gián tiếp Atlantic, Máy nước nóng trực tiếp Centon?
Atlantic Centon là thương hiệu máy nước nóng của nước nào?
Bếp nấu
Máy hút mùi
giặt – rửa
Gia Dụng
Men Sứ
Sen Vòi
phụ kiện
men Sứ
Sen Vòi
phụ kiện
men Sứ
Sen Vòi
phụ kiện
men Sứ
Sen Vòi
phụ kiện
Bình nước nóng gián tiếp
Máy nước nóng trực tiếp
phòng tắm
nhà bếp
Tiện ích khác
Phòng tắm
nhà bếp
phụ kiện
men Sứ – Đá
Sen Vòi Đồng
phụ kiện
men Sứ
Sen Vòi
Nhà Bếp
phụ kiện
Máy NLMT Ariston
Máy NLMT Ferroli
Máy NLMT Đại Thành
Máy NLMT Sơn Hà
Máy NLMT Toàn Mỹ
Bồn Inox Đại Thành
Bồn nhựa Đại Thành
Chậu inox Đại Thành
Máy lọc nước Đại Thành



