Bộ sưu tập LE BLANC của thương hiệu thiết bị vệ sinh TOTO
Tên sản phẩm: Bồn cầu TOTO CS945PDT3, bồn cầu TOTO 2 khối, nắp đóng êm
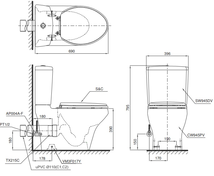
Thông số kỹ thuật bồn cầu TOTO CS945PDT3
Hệ thống xả: Siphonic
Lượng nước xả: 6/3L
Thiết kế: Thân dài
Tâm xả: 180mm (P-trap type)
Kích thước: 690x396x809 mm
Áp lực nước: 0.05MPa~0.75MPa
Màu sắc: Màu trắng,
Bao gồm van khóa và gioăng đế
Xuất xứ : Việt nam
Mã sản phẩm củ: CST945DPS
Tính năng bồn cầu TOTO CS945PDT3
Thiết kế sang trọng, hiện đại
Nắp đóng êm
Phù hợp lắp đặt với nắp rửa điện tử WASHLET (tùy chọn)
Thiết kế thân kín giúp tiết kiệm thời gian
Bồn cầu TOTO CS945PDT3 thoát ngang thường sử dụng cho các công trình chung cư. Không có đường thoát xuống sàn
Xuất xứ Việt Nam – Bồn cầu bao gồm 3 bộ phận
Thân cầu: C945P
Két nước: S945D
Nắp bồn cầu: TC385VS
Bản vẽ kĩ thuật bồn cầu TOTO CS945PDT3 thoát ngang


Chương trình khuyến mãi Thiết bị nhà bếp Malloca “Đại Tiệc Siêu To – Ưu Đãi Siêu Khủng”
Chương trình khuyến mãi INAX MÙA HÈ 2023 – SPA TẠI GIA KHÔNG ĐÂU BẰNG NHÀ
GIỚI THIỆU VỀ THƯƠNG HIỆU “THIẾT BỊ NHÀ BẾP MALLOCA VIỆT NAM”
Có nên lựa chọn dùng Bình nước nóng gián tiếp Atlantic, Máy nước nóng trực tiếp Centon?
Atlantic Centon là thương hiệu máy nước nóng của nước nào?
Bếp nấu
Máy hút mùi
giặt – rửa
Gia Dụng
Men Sứ
Sen Vòi
phụ kiện
men Sứ
Sen Vòi
phụ kiện
men Sứ
Sen Vòi
phụ kiện
men Sứ
Sen Vòi
phụ kiện
Bình nước nóng gián tiếp
Máy nước nóng trực tiếp
phòng tắm
nhà bếp
Tiện ích khác
Phòng tắm
nhà bếp
phụ kiện
men Sứ – Đá
Sen Vòi Đồng
phụ kiện
men Sứ
Sen Vòi
Nhà Bếp
phụ kiện
Máy NLMT Ariston
Máy NLMT Ferroli
Máy NLMT Đại Thành
Máy NLMT Sơn Hà
Máy NLMT Toàn Mỹ
Bồn Inox Đại Thành
Bồn nhựa Đại Thành
Chậu inox Đại Thành
Máy lọc nước Đại Thành



